En este artículo se describen las características principales de la ampliación del puente de Los Santos. El proyecto ha supuesto la ampliación de un puente de 600 m de longitud, con 3 vanos centrales de 150 m y laterales de 75 m, aumentando el ancho del tablero de 12,00 a 24,60 m, sin recurrir a una estructura independiente. El proyecto se basa en la idea de proveer del menor refuerzo posible a la estructura preexistente. Este hecho ha permitido optimizaciones muy importantes y también ha supuesto la realización de un proyecto desafiante, algunos de cuyos aspectos se describen en este artículo.
This paper describes the main features of the Los Santos Bridge widening project and construction. The bridge is 600 m long, with three main spans of 150 m and two exterior spans 75 m. The original deck width has been increased from 12.00 m to 24.60 m, in order to bear two new traffic lanes. The widening project is based on the idea of minimizing the strengthening of the original structure, and has therefore implied an enormous challenge, finally solved with remarkable optimizations, some of which are described in this paper.
El puente de Los Santos es una estructura de 600 m de longitud que salva la ría del Eo, frontera entre las comunidades autónomas de Galicia y Asturias. El puente tiene una longitud de 600 m, dividida en 5 vanos, 2 extremos de 75,00 m y 3 centrales de 150,00 m (Figura 1, Figura 2). Fue construido por voladizos sucesivos al comienzo de los años ochenta del pasado siglo ([1]). Una de las grandes dificultades del proyecto de ampliación y de su construcción ha radicado en el hecho de que debía mantenerse el puente abierto al tráfico durante la ejecución de las obras.
Figura 1. Vista general del puente de Los Santos antes del comienzo de los trabajos de ampliación.
Figura 2. Plano de situación de la ría del Eo y el puente de Los Santos.
Cuando FHECOR Ingenieros Consultores estudió duplicar su capacidad de tráfico, llegó a la conclusión de que podría hacerse reforzando localmente la cimentación, por medio de una solución pretensada, así como mediante un refuerzo adicional del tablero, por medio de una estructura exterior de acero y un pretensado exterior situado en el interior del cajón.
La estructura original estaba proyectada con gran rigor y con una optimización digna de las grandes obras de ingeniería de aquellas épocas. Para el proyecto de ampliación se realizó un estudio de soluciones que incluyó diversas alternativas. Entre estas se estudiaron soluciones planteadas para el puente de San Pedro, objeto de una problemática similar (ver ([2])). Tras el análisis de las mismas se vio que la solución de reforzar la estructura existente y utilizarla para el soporte de la ampliación era la propuesta más adecuada desde el punto de vista técnico, económico y constructivo.
La obra ha sido realizada por DRAGADOS, con la asistencia técnica de FHECOR Ingenieros Consultores. La propiedad de la obra pertenece al Ministerio de Fomento del Gobierno de España, representado por I. García-Arango. El proyecto de FHECOR fue supervisado por APIA XXI, que también participó activamente en la fase de diseño conceptual.
2. Descripción de la estructura originalAntes de su ampliación, el puente de Los Santos permitía el cruce de la antigua carretera N-634 sobre la ría del Eo. Desde un punto de vista estructural, el puente de Los Santos era un puente de hormigón pretensado de canto variable y con una clásica sección transversal de cajón monocelular construido por voladizos sucesivos.
El puente consta de 5 vanos de luces 75,00 + 3 × 150,00 + 75,00 m más un vano adicional, en el lado Galicia, de 12,00 m de luz, que salva un camino. La longitud total del puente es, por tanto, de 612,00 m (Figura 3, Figura 4).
Figura 3. Fotografía previa a la ampliación del puente de Los Santos.
Figura 4. Alzado del puente de Los Santos previo a su ampliación.
El canto del cajón de hormigón pretensado varía entre un máximo de 7,50 m en las secciones de apoyos y un valor mínimo de 3,00 m en las zonas de centro de vano, lo que representa unas esbelteces aproximadas de 20 y 50 en pilas y centro de vano, respectivamente. El ancho de la sección transversal antes de la ampliación era de 12,00 m. El ancho del cajón es de 6,50 m. Las almas son verticales, de espesor constante igual a 48 cm.
El trazado en planta de la vía a lo largo de la estructura es una alineación recta, y la rasante es horizontal.
La losa superior original era de canto variable en dirección transversal, con un espesor mínimo de 0,18 m en el extremo de los voladizos, de 2,50 m de longitud, hasta el comienzo de la cartela dispuesta entre el voladizo y el alma vertical. El canto en la sección de encuentro de la cartela y el voladizo era de 0,29 m. La anchura de las cartelas, a cada lado del alma, era de 0,25 m y la altura era igual a 0,50 m. En el eje de simetría de la sección, el espesor de la losa superior se reducía a 0,22 m.
La losa inferior tiene canto constante en dirección transversal, y dispone también de cartelas en las secciones de encuentro con las almas. Longitudinalmente su espesor varía de forma lineal, entre un mínimo de 0,20 m en los centros de vano y un máximo de 1,25 m sobre las pilas (Figura 5).
Figura 5. Sección transversal tipo previa a la ampliación.
La construcción del puente, como se ha dicho, se realizó por avance en voladizos a principios de los años ochenta (Figura 6).
Figura 6. Esquema de una fase del proceso constructivo del puente preexistente.
El pretensado está formado por 3 grupos de cables. En primer lugar, un pretensado de construcción, o de voladizos, de trazado recto en alzado y alojado en la tabla superior, con la curvatura en planta necesaria para anclarse en las zonas de encuentro entre almas y losa superior. En segundo lugar, un pretensado de continuidad, con un trazado en alzado paralelo a la tabla inferior, y que se dispone en las zonas centrales de los vanos principales. Finalmente, en los vanos extremos se tiene un pretensado de refuerzo, alojado en las almas del cajón, con trazado parabólico en alzado.
En cuanto a la vinculación entre tablero y pilas, tal y como se puede apreciar en la Figura 7, el tablero se encuentra rígidamente unido a las pilas. Cada una de las pilas está formada por un par de fustes rectangulares. La distancia entre ejes de fustes es de 8,00 m y su sección transversal es maciza, con 7,00 m de anchura máxima y canto 2,00 m (Figura 8). La altura de las pilas 1 a 4 es de 30,61, 32,91, 32,91 y 34,11 m, respectivamente.
Figura 7. Alzado de pila 1.
Figura 8. Sección transversal de uno de los fustes.
La cimentación de la pila 1, correspondiente al lado Asturias, es directa. La zapata original tenía unas dimensiones de 20,00 × 12,00 × 3,00 m.
Las pilas 2 y 3, situadas en el centro de la ría, se apoyan en sendos encepados, cuyas dimensiones eran originalmente 21,00 × 15,00 × 3,00 m, sustentados en 12 pilotes de 2,00 m de diámetro, y longitudes aproximadas de 59,00 y 47,50 m, respectivamente.
La pila 4 estaba cimentada sobre un encepado de dimensiones 20,00 × 12,00 × 3,25 m, sustentado en 12 pilotes cortos de diámetro 2,00 m en un macizo de suelo inyectado con cemento, que constituye una zona singular en lo referente a las cimentaciones.
El estribo del lado Asturias (Estribo 1) consistía en un estribo cerrado de 7,00 m de altura, 12,00 m de ancho y 2,42 m de canto, anclado al terreno con 4 anclajes pretensados. El tablero se apoyaba en el estribo mediante 2 neoprenos-teflón guiados.
La presencia del vano de acceso independiente en el lado Galicia hace que el Estribo 2 sea una pila-estribo de 9,50 m de altura por 12,00 de ancho y 2,62 m de canto. Los apoyos originales eran iguales a los del Estribo 1.
Para más información relacionada con la estructura original, véase la referencia ([3]).
Antes de comenzar la reforma de la estructura se llevó a cabo un estudio muy detallado ([4]) sobre las condiciones del puente existente, desde el punto de vista resistente y de durabilidad.
Desde el punto de vista de las caracteristicas resistentes, se estudiaron las caracteristicas mecánicas del hormigón en distintos elementos estructurales y en distintas localizaciones: resistencia a compresión, tracción y módulo de deformación longitudinal.
Desde el punto de vista de la durabilidad, se estudiaron en distintas localizaciones: intensidad y potencial de corrosión, profundidad de carbonatación, contenido de cloruros, contenido de sulfatos, densidad y porosidad del hormigón y profundidad de los recubrimientos.
3. Antecedentes al proyecto de ampliación3.1. Estado previo a la ampliaciónEn febrero de 2005, FHECOR Ingenieros Consultores redactó el informe «Autovía del Cantábrico A-8. Tramo: Barres-Ribadeo. Puente de Los Santos. Análisis Estructural del Estado Actual», en el que se evaluaba el estado actual del puente desde un punto de vista estructural.
Esta evaluación se hizo de acuerdo con las prescripciones recogidas en la resolución 12-O-4890 de la Dirección General de Carreteras del Ministerio de Fomento, por la que se aprobaba el proyecto de construcción de «Autovía del Cantábrico A-8. Tramo: Barres-Ribadeo».
Del análisis estructural y las comprobaciones incluidas en aquel informe se obtuvieron resultados similares a los que se presentaban en el proyecto de construcción original de la ampliación.
Para el análisis estructural y las comprobaciones que se llevaron a cabo, se confeccionó un primer modelo que tenía en cuenta la redistribución de esfuerzos por fluencia, suponiendo que el 60% del peso propio y del pretensado superior que se tesa sobre la estructura en voladizo actuaban sobre la estructura en T, y el 40% restante sobre la estructura final.
A partir de este primer análisis estructural se pudieron extraer las siguientes conclusiones sobre el estado previo a la ampliación del puente de Los Santos:
• El margen de seguridad del tablero, frente a la actuación de las cargas correspondientes a su situación previa a la ampliación, era adecuado tanto en situación de servicio como en rotura.
• Para los fustes de las pilas extremas, las condiciones de seguridad eran diferentes para el fuste lado margen o lado ría. El fuste lado ría presentaba unas condiciones de seguridad adecuadas. Para los fustes del lado margen se planteaban algunas dudas sobre la capacidad resistente de las secciones de arranques y cabeza. No obstante, considerando una disipación de los esfuerzos debidos a deformaciones impuestas en estado límite último (ELU), debido a la pérdida de rigidez por fisuracion, las condiciones de seguridad podían considerarse adecuadas.
• Las tensiones en cimentación, provocadas por las cargas correspondientes a la combinación rara, eran admisibles.
• Para la comprobación en ELU de las armaduras de las zapatas, las cuantías existentes resultaban ligeramente insuficientes. Considerando una disipación de los esfuerzos debidos a deformaciones impuestas en ELU, debido a la pérdida de rigidez por fisuracion, las condiciones de seguridad podían considerarse adecuadas.
• Los fustes de las pilas centrales presentaban un margen de seguridad elevado en ELU.
• Los axiles estimados en los pilotes bajo la combinación rara del ELS generaban unas tensiones máximas en los pilotes estimadas en 3,40 MPa. Este valor aumentaba hasta 4,90 MPa si se considera el peso propio del pilote.
• La armadura dispuesta en los encepados resultaba suficiente si se tenía en cuenta la contribución de la armadura dispuesta entre bandas de pilotes.
De todas estas consideraciones podía concluirse que el puente, en su situación previa a la ampliación, tenía un comportamiento que podía considerarse aceptable.
3.2. Comprobación de las pilas y cimentaciones en el estado ampliadoTambién en febrero de 2005, FHECOR Ingenieros Consultores emitió, a petición de DRAGADOS, el informe «Autovía del Cantábrico A-8. Tramo: Barres-Ribadeo. Puente de Los Santos. Análisis de pilas y cimentaciones para la ampliación propuesta». El objeto de este informe era el análisis de las pilas y cimentaciones del puente de Los Santos frente a la ampliación propuesta en el proyecto de construcción original. El proyecto de ampliación contemplaba la ejecución de un refuerzo tanto en las pilas como en la cimentación de la estructura existente. El tablero quedaba envuelto por un cajón metálico cerrado, interrumpido cada 3,75 m por costillas transversales que atravesaban la sección existente y permitían soportar los voladizos de ampliación, disponiéndose, así mismo, perfiles transversales que atravesaban las almas, situados bajo las costillas y como continuación de las mismas. Adicionalmente, el proyecto de ampliación original preveía la ejecución de 2 fustes nuevos, adosados a los fustes actuales por su parte interior. Estos nuevos fustes eran estructuralmente independientes de los existentes, aunque ambos estaban en contacto. Por ello se preveían medidas para eliminar la adherencia y a la vez coartar sus movimientos horizontales, para prevenir fenómenos de inestabilidad de la nueva pila, entre los fustes existentes y los nuevos. Se preveía además un pretensado vertical en los fustes nuevos, anclado a la cimentación.
Las principales conclusiones de este informe fueron las siguientes:
• Los fustes de las pilas extremas presentaban unas condiciones de seguridad adecuadas para la situación ampliada.
• La situación de los fustes existentes de las pilas extremas mejoraba respecto a la estimada en el análisis de la situación previa a la ampliación, puesto que, debido a las cargas del tablero ampliado, aumentaban los axiles, lo que resultaba favorable, especialmente para los fustes lado margen, que tenían una situación más exigente en la situación no ampliada.
• Para los fustes nuevos de las pilas extremas las condiciones de seguridad eran igualmente adecuadas, si bien presentaban una seguridad muy estricta, que podría verse reducida si no se respetaba el procedimiento constructivo supuesto en proyecto.
• La tensión máxima transmitida al terreno por la zapata de la pila 1, en situación de servicio se estimó en 1,38 MPa. El aumento de canto de la cimentación, propuesto en la ampliación, era adecuado para asegurar unas condiciones suficientes de seguridad.
• Los fustes de las pilas centrales, tanto existentes como los nuevos resultantes de la ampliación, presentaban unas condiciones de seguridad adecuadas, más holgadas que las de las pilas 1 y 4.
• Los axiles estimados en los pilotes de la pila 2 bajo la combinación rara del ELS generaban unas tensiones máximas en los pilotes estimadas en 5,3 MPa. Este valor aumentaba hasta 6,3 MPa si se consideraba el peso propio del pilote.
• En cuanto a la armadura de los encepados, y considerando el canto obtenido mediante el recrecido, la armadura dispuesta en bandas de pilotes resultaba suficiente, salvo en casos puntuales. Teniendo en cuenta la contribución de la armadura dispuesta entre bandas, los márgenes de seguridad eran suficientes.
De todas las consideraciones anteriores podía concluirse que la ampliación propuesta en el proyecto original era adecuada para los fustes y cimentaciones preexistentes.
3.3. Anteproyecto de la ampliación del puente de Los Santos con celosías adosadasEn julio de 2005, FHECOR Ingenieros Consultores llevó a cabo un primer anteproyecto de ampliación del puente de Los Santos, alternativo al del proyecto original, y consistente en la colocación de 2 celosías metálicas apoyadas en la subestructura existente sobre un pequeño recrecido de las pilas preexistentes. En la Figura 9 se pueden apreciar las ideas generales de esta propuesta.
Figura 9. Secciones transversales propuestas en el anteproyecto de ampliación con celosías.
3.4. Anteproyecto de ampliación del puente de Los Santos con jabalconesEn agosto de 2005, FHECOR Ingenieros Consultores presentó el anteproyecto de una segunda solución para la ampliación del puente de Los Santos. Esta nueva propuesta consistía en la ampliación del ancho del tablero por medio de unos jabalcones metálicos que nacían de unas vigas transversales dispuestas bajo el cajón de hormigón pretensado. A partir de esta nueva idea se desarrolló el proyecto de construcción definitivo de la obra, que finalmente ha sido llevado a cabo por DRAGADOS (Figura 10).
Figura 10. Concepción del proyecto de ampliación (sección transversal).
4. Diseño conceptualLa Figura 10 muestra algunos de los conceptos empleados para duplicar la capacidad del puente, que se resumen en:
• La construcción de una tercera alma interior para la transferencia de las nuevas cargas y refuerzo a cortante del tablero.
• Puntales metálicos o jabalcones y vigas transversales que soportan los nuevos carriles de tráfico.
• Pretensado exterior por dentro del cajón, para comprimir el tablero y aumentar la capacidad resistente a flexión y torsión.
• Nuevos diafragmas y rigidizadores transversales con 2 objetivos: desviar el pretensado exterior y controlar la distorsión del cajón.
• Un elemento longitudinal metálico, relleno de hormigón, bajo el cajón preexistente, de sección cajón y conectado con la tercera alma para reforzar el tablero.
• Refuerzo de los diafragmas sobre pilas por medio de cables pretensados verticales.
• Aumento del canto de los encepados de las pilas centrales. Con una solución pretensada y apoyada sobre los encepados preexistentes.
• Aumento del canto de la zapata o encepado en las pilas extremas,con una solución pretensada y apoyada sobre la zapata o encepado preexistente.
• Ejecución de nuevos apoyos para la estructura en la seccón de estribos, por delante de los estribos preexistentes.
Los aspectos principales del proyecto y la obra se describen en los siguientes apartados.
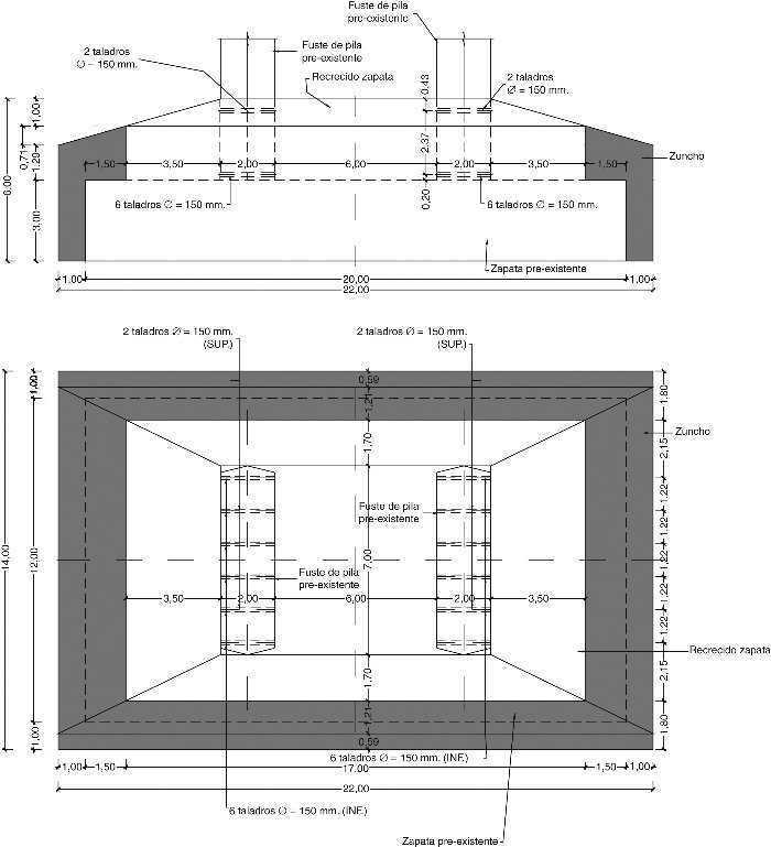
5. Refuerzo de la cimentaciónComo se ha mencionado en la sección 2, de las 4 pilas del puente, las 2 centrales están cimentadas sobre pilotes, mientras que la pila 1 tiene cimentación directa sobre la roca, y la pila 4 se apoya en pilotes cortos sobre un macizo inyectado con cemento. Desde el punto de vista de las condiciones del suelo, las prospecciones geotécnicas mostraron que el suelo era capaz de resistir la carga adicional del peso propio de la ampliación y el tráfico. Sin embargo, las zapatas y los encepados necesitaban ser reforzados, porque su capacidad resistente a flexión ya estaba ajustada antes de la ampliación.
La primera propuesta hecha por FHECOR Ingenieros Consultores consistía simplemente en aumentar la resistencia de la cimentación mediante el hormigonado de una losa sobre las zapatas y encepados existentes, para de ese modo aumentar su canto y permitir que la armadura existente, con más canto, soportara las nuevas cargas adicionales. Se comprobó que la superficie de contacto entre el hormigón nuevo y el viejo era capaz de transmitir las cargas mediante un mecanismo de cohesión/fricción. Para garantizar una superficie con alta capacidad de fricción se generó una superficie rugosa como la mostrada en la Figura 12 (ver también Figura 11), en la que se ve una vista superior del espacio entre los 2 fustes de la pila protegida por el recinto estanco metálico usado para poder trabajar con independencia de las mareas.
Figura 12. Vista del espacio entre fustes de la pila. Se distingue la superficie rugosa.
Figura 11. Recrecidos de encepados de pilas 2 y 3.
La primera idea de incrementar el canto de la cimentación tuvo que ser parcialmente abandonada, debido a que una inspección submarina mostró que el hormigón de las 2 cimentaciones extremas había sido fuertemente deteriorado debido a la utilización, en su momento, de un método constructivo novedoso que posteriormente resultó ser deficiente. Esta inspección llevó a un nuevo diseño de la cimentación de las pilas laterales, mientras que la solución anteriormente descrita fue válida para los encepados de las pilas centrales.
Para las pilas de los extremos, se tuvo que diseñar una losa de 3,00 m que soportara el total de las cargas, mientras que se despreciaba la capacidad resistente de la zapata o encepado existente. Además, la zapata o encepado existente se saneó inyectando resina epoxi en su interior, con el fin de rellenar los huecos existentes. En la fotografía de la Figura 13 se puede apreciar cómo aparece resina en los paramentos laterales de la zapata de la pila 1.
Figura 13. Resina inyectada en las zapatas saliendo por oquedades del hormigón.
Para conectar esta nueva cimentación con los fustes de las pilas existentes se utilizó pretensado, ya que minimizaba el número de taladros que debían realizarse en la pila y, por lo tanto, la afección o daño a la armadura existente en los fustes (Figura 14). Para ello se realizaron 8 perforaciones circulares en la base de las pilas para permitir el paso de los tendones de pretensado. El pretensado se diseñó centrado, con cables superiores e inferiores, para evitar esfuerzos perjudiciales hasta la entrada de las cargas debidas a la ampliación. La Figura 15 muestra la operación de perforado, y la Figura 16 muestra el aspecto final de la nueva cimentación.
Figura 14. Alzado longitudinal del pretensado del recrecido en pilas 1 y 4.
Figura 15. Refuerzo de la cimentación de las pilas laterales. Operaciones de perforación.
Figura 16. Solución final pretensada de la cimentación de las pilas laterales.
A partir de las inspecciones submarinas, y puesto que el proyecto original lo contemplaba, se decidió además diseñar un zuncho perimetral que envolviese tanto la zapata o encepado preexistente como las nuevas cimentaciones de las pilas 1 y 4 (Figura 17, Figura 18).
Figura 17. Zuncho perimetral de zapatas de pilas 1 y 4.
Figura 18. Construcción del zuncho perimetral de pila 4.
6. Análisis de las pilasEn este puente, debido a su configuración (el tablero está empotrado en las pilas), el efecto de las deformaciones impuestas, debido al comportamiento reológico del hormigón y los efectos de la temperatura, es muy condicionante para la infraestructura.
Para un análisis más realista del comportamiento de la infraestructura se realizó un análisis no lineal, teniendo en cuenta el comportamiento no lineal mecánico. El análisis se llevó a cabo usando el módulo no lineal del programa interno FHp, desarrollado por FHECOR Ingenieros Consultores.
La Figura 19 muestra la variación de la tensión en la armadura traccionada de la sección de empotramiento superior de las pilas extremas del puente, en la unión con el tablero, y en la sección inferior, en la unión con cimentación, para una deformación impuesta instantánea creciente. Además de esta deformación, se considera que actúan las acciones permanentes: peso propio, carga muerta y pretensado a largo plazo.
Figura 19. Tensión en las armaduras como una función de la deformación impuesta del tablero (cálculo lineal con rigidez bruta, con rigidez reducida y análisis no lineal).
El valor máximo de deformación impuesta utilizado, de 0,58 mm/m es mucho más alto que el correspondiente solamente a la deformación de temperatura solicitante. Con este valor se considera también la influencia de las deformaciones reológicas, teniendo en cuenta que el comportamiento reológico del hormigón tiene un impacto en la tensión de la armadura proporcionalmente mucho más bajo que la temperatura, dado que, en este caso, se da una relajación por fluencia.
En la Figura 19, el cálculo a nivel de sección es no-lineal en todos los casos. Lo que varía son los esfuerzos que se obtienen del modelo de cálculo, que en un primer caso corresponden a rigideces brutas (análisis lineal), en un segundo caso a un análisis no lineal a nivel de estructura (análisis no lineal) y en un último caso a un cálculo simplificado suponiendo un análisis lineal pero con la rigidez de la pila disminuida a 1/3 de la rigidez bruta.
Se observa que si se considera nula la fisuración del hormigón en la determinación de los esfuerzos (análisis lineal), las tensiones resultantes en las armaduras son irrealmente altas. También se observa que la hipótesis simplificada de considerar una rigidez igual a la rigidez bruta dividida por 3 es una aproximación razonable al cálculo no lineal, que queda del lado de la seguridad cuando la deformación impuesta es importante.
Con este análisis se pudo comprobar que las pilas, con la armadura existente, tendrían un funcionamiento adecuado en servicio. Esta comprobación, complementada con una comprobación en ELU, en la que no se consideraron las deformaciones impuestas (por contar las pilas con suficiente ductilidad), permitió concluir que no era necesario un refuerzo del armado de las pilas.
7. Ensanche y refuerzo del tableroEl tablero de hormigón existente necesitaba un refuerzo para soportar el incremento de cargas. El refuerzo se llevó a cabo con 3 medidas diferentes: la disposición de una tercera alma por dentro de la sección cajón, la conexión de esta con un nuevo cajón metálico situado en la cara inferior del tablero, y la disposición de pretensado exterior dentro del cajón de hormigón pretensado preexistente (Figura 20).
Figura 20. Croquis de la sección transversal ampliada.
7.1. Nueva alma central y estructura metálica de refuerzoSe ha ejecutado un alma central de hormigón armado, de 35 cm de espesor, en el interior del cajón de hormigón original. Este elemento recoge las cargas provenientes de los voladizos ampliados y constituye el principal refuerzo a cortante del tablero. La armadura principal del alma está constituida por grupos de 4 barras verticales de 50 mm de diámetro, de acero B500S, dispuestas cada metro. Estas barras de cortante están ancladas en su parte superior por medio de chapas de reparto y cosen el cajón metálico longitudinal inferior, al que están también ancladas mediante chapas de reparto (Figura 21, Figura 22, Figura 23).
Figura 21. Alzado y sección transversal del alma central y el cajón metálico longitudinal.
Figura 22. Fotografía de las barras de cortante del alma central. Obsérvense los taladros de la losa superior, realizados mediante hidrodemolición, para evitar daños en la armadura de la losa superior necesaria para las nuevas cargas.
Figura 23. Sección transversal del cajón metálico inferior relleno de hormigón.
La misión del cajón metálico longitudinal, de 0,90 m de canto es, además de reforzar a flexión el tablero junto con el pretensado exterior, servir de apoyo al conjunto de las vigas transversales o balancín y puntales o jabalcones que recogen la ampliación de la losa superior, que se disponen cada 5,00 m. Este cajón metálico longitudinal se rellenó de hormigón autocompactable HA-45/AC/25/IIIa en toda su longitud para evitar, por un lado, problemas de corrosión de las barras verticales de cuelgue y de cortante, y para aumentar, por otro, su capacidad resistente a compresión en las proximidades de las pilas. La capacidad a compresión de este cajón mixto supone, aproximadamente, el 30% de la capacidad a compresión de la losa inferior en la sección de apoyos.
Las traviesas, que recogen las cargas de la ampliación se cosen al cajón del tablero existente por medio de 4 barras pretensadas de 40 mm de diámetro. Estas barras hacen una función de cuelgue y permiten pasar la carga recogida por los jabalcones y las vigas transversales desde la cara inferior del tablero a la cara superior del mismo. El motivo de pretensar estas barras era dar una pre-compresión al contacto entre el cajón preexistente y los extremos de las traviesas, en los que fueron instalados unos neoprenos de 10 mm de espesor. Esta pre-compresión impide que se produzca el despegue del extremo de las traviesas para las cargas en servicio, disminuyendo así las deformaciones locales en los voladizos ampliados. De esta forma, las torsiones se transmiten a la sección existente por descompresión de uno de estos apoyos y por incremento de compresión en el otro. En ELU, en caso de despegue, la parte de torsión local que se transmite posteriormente a dicho despegue entraría por tracción de las barras del alma central y compresión del alma más alejada de la carga.
Así mismo, se han dispuesto unos topes transversales, en los extremos de las traviesas, para conseguir que se recojan en este punto las cargas desequilibradas horizontales de los voladizos (Figura 24).
Figura 24. Barras verticales de cuelgue. Anclajes superior e inferior mediante placas de reparto (izquiera) y viga transversal con apoyo de neopreno entre estructura existente y estructura metálica (derecha).
La Figura 25 muestra una de las 3 cimbras móviles construidas para la construcción de la ampliación. Esta cimbra se utilizaba para la instalación de un módulo metálico constituido por una viga transversal y un tramo del cajón longitudinal continuo. El módulo se transportaba hasta el emplazamiento en camión y luego lo recogía la cimbra con un sistema de grúas y lo movía hasta su emplazamiento final debajo de la sección transversal, donde quedaba sujeto por las barras de sujeción. La cimbra, tal como puede verse, estaba diseñada para permitir el paso del tráfico. La interrupción del tráfico se producía durante apenas unos minutos en el momento en el que el camión se acercaba y la cimbra tomaba el control del elemento. En la Figura 26 se muestra el momento en que la situación del módulo en el emplazamiento definitivo estaba prácticamente realizada.
Figura 25. Cimbra móvil para montaje de vigas transversales y cajon longitudinal metalico.
Figura 26. Colocación de un módulo en su emplazamiento definitivo.
7.2. Diafragmas transversales del cajón pretensadoEl sistema de cuelgue planteado para integrar las cargas de la ampliación al cajón del puente original se produce como se explica seguidamente. Para cargas simétricas, de peso propio y carga muerta, por ejemplo, o para las cargas de tráfico en la hipótesis en que actúan simétricamente a ambos lados de la parte ampliada, la integración con el cajón del puente original es a través de la nueva alma central, sin que las almas existentes absorban una parte significativa del nuevo cortante. Para las cargas asimétricas de tráfico, el mecanismo es un poco más complejo. Esta situación produce un cortante vertical, que igualmente se integra en el sistema general resistente, entrando en el alma central a través del sistema de la viga transversal y las barras de cuelgue, y un torsor que ejerce un empuje ascendente y otro descendente en las almas del cajón del puente original. Tal como se ha explicado, las barras de cuelgue, que son pretensadas, comprimen la viga transversal a las almas del cajón existente. Esta situación permite que se admitan empujes descendentes porque esto solo produce una disminución de la compresión de la viga transversal contra las almas del cajón.
Las torsiones son absorbidas por el cajón original. La armadura dispuesta en este cajón es suficiente para absorber los esfuerzos de torsión adicionales, sin refuerzo, de acuerdo con los modelos de la instrucción vigente, en toda la estructura salvo en la proximidad de los estribos, donde faltaría un 20% de armadura longitudinal. Para esta sección se ha comprobado que la armadura es suficiente aplicando otros modelos normativos, tales como el de la Instrucción Americana ACI-318 y que, además, no se produce la fisuración de la sección en esta zona teniendo en cuenta la interacción torsión-cortante-flexión en ELU, por lo que la resistencia frente a tensiones tangenciales sería mucho mayor en esta zona, dado que correspondería a la de la sección no fisurada.
Por el mecanismo de transmisión de la torsión se producen distorsiones en el cajón que inducen unos esfuerzos en la sección transversal del tablero. Además, existen otros esfuerzos adicionales en la sección transversal motivados por el pretensado de las barras de cuelgue, que produce un empuje vertical ascendente por el contacto de la viga transversal y las almas del cajón existente.
Estos efectos son resistidos por la losa inferior del cajón en las zonas del tablero cercanas a las pilas, donde su espesor es importante, y por unos nuevos diafragmas transversales que transmiten al alma central estos esfuerzos en la parte central de los vanos del puente.
Así mismo, algunos de estos diafragmas transversales tienen la misión de desviar el pretensado exterior situado en el interior del cajón existente (Figura 27).
Figura 27. Alzado y sección transversal de los desviadores-rigidizadores (no se representa el cajón metálico).
En estos diafragmas se disponen barras ancladas en el exterior del cajón, tanto en la zona superior como inferior. Las barras transversales superiores permiten recoger las tracciones debidas al empuje vertical de desvío del pretensado exterior del interior del cajón. Las barras transversales inferiores permiten llevar al alma central parte de las fuerzas verticales que se producen en las almas del cajón existente.
Como es lógico, los diafragmas transversales que no actúan como desviadores, no debían interferir en el trazado poligonal del pretensado exterior, para lo que se dispusieron unos tubos de PVC con una holgura suficiente para permitir el paso de los cables de pretensado (Figura 28, Figura 29).
Figura 28. Alzado y sección transversal de los rigidizadores transversales de centros de vano (no se representa el cajón metálico).
Figura 29. Vista del pretensado exterior dentro del cajón atravesando un rigidizador transversal dispuesto solo para limitar la distorsión del tablero.
7.3. Conexión de la nueva losa con el tablero existente del puenteEl tablero de hormigón ha sido ampliado mediante una losa ejecutada in situ, con hormigón ligero con una resistencia de 35 MPa y un peso específico de 18 kN/m3. Esta losa se vincula monolíticamente al tablero existente y se apoya, además, en el sistema de jabalcones-viga transversal que transfiere la carga al cajón existente. Todo este proceso ha sido muy complicado y ha estado muy condicionado por la necesidad de mantener el tráfico en el puente durante la ampliación.
La losa del puente existente requería un refuerzo de armadura en el paramento superior, para lo que se previó la demolición del recubrimiento de la armadura actual y la instalación de una armadura adicional que se colocaba en un regruesamiento que se había previsto para asegurar su recubrimiento. La ampliación a ambos lados del cajón existente se construyó con doble armadura superior para garantizar el buen comportamiento en las distintas fases constructivas y en servicio. Se aseguró una superficie rugosa de la interfaz.
En la Figura 30 se muestran las distintas etapas de la construcción de la losa superior y los desvíos necesarios para garantizar el mantenimiento del tráfico.
Figura 30. Situación del tráfico. Arriba: durante la demolición y construcción de los voladizos de ampliación, el tráfico circula por el centro del cajón. Abajo: para completar el recrecido de la losa resulta necesario que el tráfico circule por los voladizos ampliados.
En la Figura 31 se muestran las distintas fases constructivas previstas para la ejecución de la conexión entre la losa existente y la nueva. Se puede ver cómo se aumenta el espesor de la losa existente para albergar una nueva capa de armadura de refuerzo necesaria para resistir las nuevas cargas. Se pueden ver, además, las secuencias de hormigonado y la disposición de armadura de la unión entre la losa nueva y la existente.
Figura 31. Fases constructivas y disposición de armadura para la conexión entre la losa existente y la nueva losa.
Después de construida el alma central, se ocupó la parte central del tablero con el tráfico, tal como se puede ver en la Figura 30, para proceder a la demolición de los voladizos del cajón existente, en una longitud de 1,20 m. Durante esta tarea, y para evitar la contaminación de la ría, se diseñó una segunda cimbra móvil que permitía recoger los escombros de la demolición en un contenedor especialmente diseñado, tal como se muestra en la Figura 32.
Figura 32. Cimbra móvil para la demolición de los voladizos del cajón existente.
Seguidamente se ferralló y hormigonó la losa ampliada. Para ello se instaló una tercera cimbra móvil (Figura 33), que tenía por función, por un lado, permitir la instalación de los jabalcones que, unidos a las vigas transversales ya instaladas en la parte inferior del cajón, soportaban la ampliación; por otro, sirvió como encofrado de la nueva losa.
Figura 33. Cimbra móvil para la instalación de jabalcones y hormigonado de la losa ampliada.
Para poder ejecutar el refuerzo de la losa existente, el tráfico debía moverse a la zona nueva, y era necesario, por un lado, garantizar una conexión entre la armadura de la losa nueva y la existente en esa etapa y, por otro, garantizar la conexión entre el refuerzo de la losa existente y la nueva ya hormigonada.
Para ello, la losa nueva se hormigonó con su canto definitivo en toda su longitud excepto en la zona de la conexión con la losa existente, que se hormigonó con un canto menor. La losa nueva tiene una doble capa de armadura superior en esa zona. Una, más baja, que se solapa con la armadura de la losa existente y se recubre de hormigón en esta etapa. Otra, más alta, que se solapa con la armadura de refuerzo de la losa existente, que se hormigona en una segunda etapa. Para la unión entre capas se consideró suficiente un acabado rugoso y la presentación de una superficie limpia y seca, sin que se haya utilizado ningún producto adicional para asegurar el pegado de la interfaz.
Una vez producido el hormigonado de la losa nueva se pasa el tráfico a esta zona ampliada, se quita el recubrimiento de la losa existente, se instala la armadura adicional, se crea el puente entre este hormigón y el que se instala posteriormente y se hormigona la nueva capa adicional que cubre la armadura de refuerzo. En esta etapa se hormigona, así mismo, la capa superior de la zona de solape entre la armadura superior de la losa nueva y el refuerzo superior de la losa existente.
El solape de la armadura superior de la segunda capa de la losa nueva y la existente, en la losa existente, se realizó con longitud de solape y, como se comprobó que el acero existente era soldable, adicionalmente por soldadura.
7.4. Pretensado exteriorEl pretensado exterior, dispuesto en el interior del cajón, constituye el refuerzo principal del mecanismo general de flexión de la ampliación del puente de Los Santos. Este refuerzo se consigue, en parte, gracias a las fuerzas de desvío, con una modesta contribución, y fundamentalmente gracias a la nueva compresión introducida en la sección cajón.
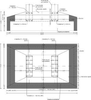
El pretensado tiene un trazado poligonal, materializado por medio de 2 desviadores en los vanos principales y un desviador en los vanos laterales. El pretensado está constituido por 8 tendones de 37 cordones de 1,5 cm2, anclados en los diafragmas de pilas (anclajes activos y pasivos) y en las riostras de estribos (anclajes pasivos) (Figura 34, Figura 35).
Figura 34. Trazado del pretensado de refuerzo exterior. Alzado longitudinal.
Figura 35. Arriba: fotografía del pretensado exterior en el interior del cajón con vista de uno de los desviadores. Abajo: vista de los anclajes activos y pasivos del pretensado exterior situado en el interior del cajón, en las riostras de pila.
Una de las tareas complicadas en la ejecución de la nueva estructura fue el enfilado y tesado de los tendones de pretensado exterior. El tesado se hizo de forma convencional, empezando por los tendones centrales al 100% de la fuerza de tesado y tesando cada tendón en 4 fases, con objeto de controlar los alargamientos y la linealidad de las deformaciones, como se hace habitualmente. Para reducir las operaciones de transporte de los gatos se tesaron todos los tendones de un vano antes de proceder a tesar los de los otros vanos.
El paso de los tendones a través de los diafragmas de pilas afectó de forma muy importante a la armadura dispuesta en los diafragmas triangulares existentes. Fue entonces necesario establecer otro mecanismo de transferencia de las cargas desequilibradas del tablero, y esto se realizó utilizando una armadura adicional pretensada en el alma central del cajón, tal como se muestra en la Figura 36.
Figura 36. Pretensado vertical en los diafragmas de pilas, dispuesto para habilitar otro mecanismo resistente para compensar la pérdida de armado en las paredes inclinadas de los diafragmas existentes, durante las perforaciones necesarias para pasar y anclar los tendones del pretensado exterior (no se representa el cajón metálico).
Especialmente complicado fue también dar con una solución óptima para las nuevas riostras de anclaje del pretensado exterior en los estribos.
En el caso del estribo del lado Asturias, se optó por anclar los tendones del pretensado exterior en el exterior de la viga riostra existente (Figura 37). Para reforzar su capacidad resistente se aumentó la longitud de la riostra, en el sentido longitudinal del puente, en 2,50 m. De esta forma, la nueva riostra quedaría configurada con un canto total de 4,50 m. La armadura de difusión vertical se dimensionó con armadura pasiva y armadura activa, con barras de pretensado. La armadura de difusión horizontal se dimensionó con cables de pretensado con trazado recto en planta y alzado. El paso de hombre se rellenó de hormigón en toda su longitud, disponiéndose además armadura pasiva horizontal y vertical anclada mediante taladros. Entre las placas de anclaje y el hormigón de la riostra preexistente se dispuso una placa de reparto conjunta para cada 4 tendones de pretensado exterior, para mayor difusión de la carga concentrada.
Figura 37. Sección en planta de la riostra de anclaje del pretensado exterior situado en el interior de cajón, en el estribo del lado Asturias.
La presencia del vano de acceso independiente en el lado Galicia hacía que en ese estribo no hubiese espacio para acceder a colocar las cuñas de anclaje por detrás del estribo, por lo que fue necesario el estudio de una solución distinta. La solución propuesta para la riostra del estribo del lado Galicia consistió en realizar una nueva riostra independiente de la riostra preexistente y anclar el pretensado exterior un poco antes del estribo. La geometría y el armado de esta riostra son análogos a los de la riostra del estribo del lado Asturias, si bien trasladando el mismo esquema estructural 2,00 m hacia el centro de vano. En este caso las placas de anclaje quedaron embebidas en el hormigón de la nueva riostra y no se dispuso de una placa de reparto conjunta. La gran desventaja de esta solución, frente a la ejecutada en el estribo del lado Asturias, es que no es posible la sustitución de los cordones del pretensado (Figura 38).
Figura 38. Alzado longitudinal de la riostra de anclaje del pretensado exterior situado en el interior del cajón, del estribo del lado Galicia.
8. Nuevos apoyos en estribosInicialmente se contempló la posibilidad de aprovechar los estribos existentes, añadiendo un apoyo bajo la nueva alma central y disponiendo un sistema antilevantamiento. Sin embargo, tras detectar varios problemas durante la ejecución de las obras, tales como la dificultad de sustitución del cambio de apoyos manteniendo el tráfico rodado, o la inconveniencia del sistema antilevantamiento diseñado, se decidió estudiar una nueva solución que mejorase estos aspectos.
Las nuevas soluciones estructurales partieron de la idea de recrecer los estribos hacia el lado de la ría, situando los nuevos apoyos sobre un nuevo muro frontal, de forma que se evitase la necesidad de reemplazar los apoyos originales y de actuar, debilitándolos, sobre los estribos preexistentes. Además se ideó un sistema antilevantamiento alternativo más simple y fácil de construir.
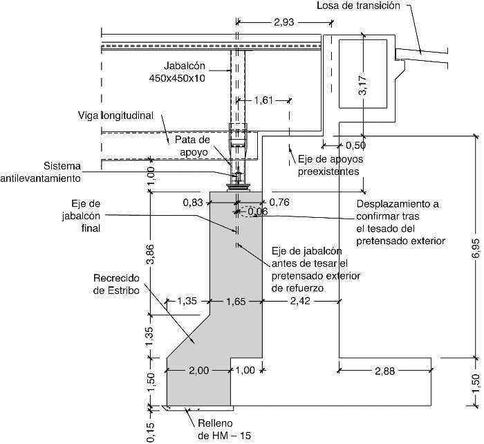
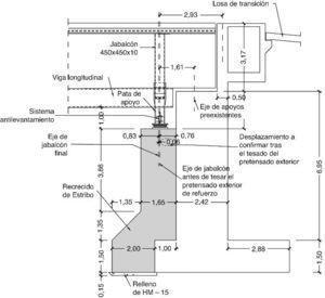
8.1. Ampliación del estribo del lado AsturiasLa solución adoptada para el estribo del lado Asturias consistió en un nuevo muro de hormigón armado de 5,20 m de alto por 12,00 m de ancho y 1,65 m de canto, adosado al muro del estribo preexistente, pero sin conexión al mismo (Figura 39, Figura 40). El canto del muro vino impuesto por la posición de los jabalcones y de la traviesa del estribo, que fijó la posición del eje de los nuevos apoyos, centrados sobre el alzado del muro. Para fijar la posición de los nuevos apoyos se tuvo en cuenta el acortamiento elástico del tablero, de unos 60 mm, producido por el pretensado exterior.
Figura 39. Fotografía de la ampliación del estribo del lado Asturias.
Figura 40. Alzado lateral de la ampliación del estribo del lado Asturias.
El nuevo muro se apoyó sobre la puntera del muro existente. Además, desde la nueva puntera hasta el nuevo muro se dispuso un acartelamiento para facilitar la transmisión de esfuerzos.
La armadura de la puntera preexistente se conectó a la del recrecido, descubriéndola y solapándolas. La conexión se reforzó con armadura anclada mediante taladros con resina epoxi. La armadura de la cara de tracción del nuevo muro se ancló a la puntera de la zapata preexistente también con barras corrugadas colocadas a posteriori.
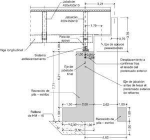
8.2. Ampliación del estribo del lado GaliciaEn la ampliación de la pila-estribo del lado Galicia se adoptó una solución similar a la del Estribo 1, en el alzado, con algunas diferencias en la cimentación.
En este caso, el muro se dimensionó de 6,20 m de altura por 12,00 m de ancho y 2,00 m de canto. El canto del muro también vino impuesto por la posición de los jabalcones y de la traviesa del estribo, con el fin de disponer el eje de los nuevos apoyos centrados sobre el muro.
Gracias a la posibilidad de acceso a la parte posterior de la pila-estribo, dado que no hay tierras tras el estribo como en el caso del estribo lado Asturias, la cimentación se dimensionó como una nueva zapata centrada, apoyada, en parte, sobre la zapata preexistente. La armadura de la cara inferior se dimensionó con barras ϕ50 atravesando el muro preexistente, reduciendo así el número de taladros a realizar (Figura 41).
Figura 41. Alzado lateral de la ampliación de la pila-estribo, lado Galicia.
8.3. Aparatos de apoyoSe dispusieron 2 apoyos tipo POT de 7.000 kN de carga vertical máxima en servicio, uno de ellos libre y otro guiado en sentido longitudinal (Figura 42). Al disponer 2 apoyos en lugar de 3, se reducía la reacción máxima de tiro. El POT guiado debía soportar una fuerza transversal en servicio de 120,0 t. El desplazamiento longitudinal máximo admisible en servicio en ambos era de ± 65 mm.
Figura 42. Aparatos de apoyo tipo POT. Puede observarse que, contrariamente a lo habitual, la placa de deslizamiento se dispuso debajo del apoyo para facilitar el centrado del apoyo en la pata metálica.
8.4. Estructura metálica de apoyo en estribos y sistema antilevantamientoLa estructura de apoyo en estribos se compone de una viga transversal, 2 patas de apoyo y 2 barras ancladas al estribo (Figura 43, Figura 44).
Figura 43. Estructura metálica de apoyo en estribos y sistema antilevantamiento.
Figura 44. Fotografía de una de las nuevas patas de apoyo dispuestas en los estribos. Se puede ver una de las barras del sistema antivuelco del tablero y el faldón de protección dispuesto en el POT.
La viga transversal se dimensionó para puentear la carga de la nueva alma central a las 2 patas de apoyo.
Como se ha mencionado anteriormente, al disponer solamente 2 apoyos en lugar de tres se redujo la fuerza de tiro vertical debida al vuelco del tablero. Se dejó un espacio suficiente, entre la viga y la coronación del muro, para permitir la maniobra de puesta en carga de los nuevos apoyos.
El sistema antilevantamiento ejecutado está formado por 2 barras corrugadas ancladas al cuerpo del nuevo muro en su extremo inferior, y a unas ménsulas metálicas empotradas en las patas de apoyo en su extremo superior. Con objeto de permitir los desplazamientos horizontales del tablero en los estribos, las barras se alojaron en tubos de PVC.
9. ConclusionesEl proyecto de ampliación del puente de Los Santos ha sido una tarea ingenieril muy desafiante. Haciendo uso de los mecanismos resistentes de la estructura existente, ha sido posible reducir considerablemente los costes. El proceso que ha conducido a la solución final ha sido el resultado de fructíferas discusiones entre ingenieros relacionados con el proyecto y la construcción, y ha requerido una gran cantidad de energía a la hora de proponer y debatir una gran cantidad de ideas. Los problemas constructivos que han aparecido, tales como los daños existentes en las cimentaciones originales, pequeños incidentes en el proceso de tesado de los tendones de pretensado, etc., han supuesto dificultades adicionales en el camino hacia la solución final. Finalmente, un proyecto de estas características pone de manifiesto cómo la ingeniería puede proporcionar un resultado final que combina belleza y utilidad, aun cuando la formulación del problema esté fuertemente condicionada, entre otras cosas, por la estructura existente (Figura 45).
Figura 45. Vista del puente de Los Santos con las obras de ampliación terminadas.
CréditosLos autores desean reconocer la contribución al proyecto y construcción del puente de Los Santos en sus distintas fases a las siguientes personas: Julio Sánchez Delgado, Francisco Prieto Aguilera, Javier León González y Ariel Espeche de FHECOR Ingenieros Consultores, Luis Miguel Viartola de DRAGADOS, S.A. y Marcos Pantaleón de APIA XXI.
Recibido 26 Junio 2013
Aceptado 7 Enero 2014
Autor para correspondencia. hcp@fhecor.es














































